Развернуть карту

Купить помещение под производство 4400.0м Московская область, ..., 352000000 руб.

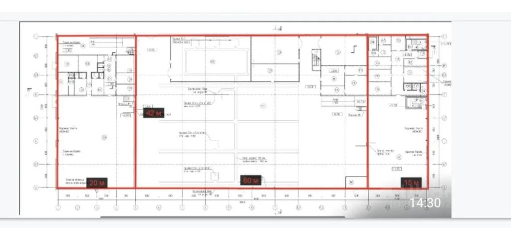
  • Общая площадь, м²4400.0
  • Размер офисной части, м²600.0
  • Размер производственной части, м²3800.0
  • Размер прилегающей территории, Га1.0
  • Класс зданияA
  • ЭлектроснабжениеОбеспечено действующим договором с электросбытовой компанией
  • Газоснабжениегазопровод проходит по границе или по самому участку
  • Водоснабжениецентральное водоснабжение
  • Канализацияценральная канализация
  • Высота потолков11

Продается производственно-складское здание 4400 с участком 0, 73 га.
Площадь производственных помещений - 3 780 кв.м. Площадь офисно-бытовой части - 600 кв.м.
Помещения с ровными бетонными полами, освещением, отоплением, водоснабжением и интернетом. На территории имеется КПП и видеонаблюдение.
В комплексе есть вся необходимая производственная инфраструктура:
9 санузлов,
3 душевых отделения;
Помещения для размещения рабочего персонала и ИТР;
2 комнаты приема пищи;
Технические помещения;
помещение водоподготовки и пожаротушения;
склад материально технического снабжения;
слесарная мастерская;
лаборатория.
Технические характеристики :
Высота потолков от 11 до 13 метров, полный набор коммуникаций (электричество, отопление, вода, канализация), бетонные обеспыленные полы и две вентиляционные камеры. Электрическая мощность составляет до 500 кВт, что подходит для энергоемких производств, с возможностью дальнейшего увеличения.
Газ проходит по границе , есть возможность подключения.
Комфортная логистика:зоны погрузки прямо у ворот, асфальтированный заезд, площадка для маневрирования фур. Удобный выезд на Ярославское шоссе и ЦКАД, откуда можно быстро попасть в любую точку МО.
В стоимость продажи входит земельный участок под зданием и прилегающая территория.
Помещение подойдет под любое производство, автосервис, склад, логистические услуги и пр.



352000000 руб. | 5332679 $ | 4673282 €

Костюнин Дмитрий Владимирович

+7 (916) 531-49-20

Добавлено: 09 Apr 2026, 18:10:12